- Paris VII -
JARDIN DE L’INTERNAT
jardin avant travaux
L’hôtel particulier de la Rue de Sèvres est classé aux monuments historiques.





jardin haut - Cour intérieure
2018-2022
Île de France (75)
Paris VIIe
Île de France (75)
Paris VIIe
Maîtrise d’ouvrage : Congrégation des Filles de La Croix
Maîtrise d’oeuvre : Studio Auréjac Rouzaud (paysage)
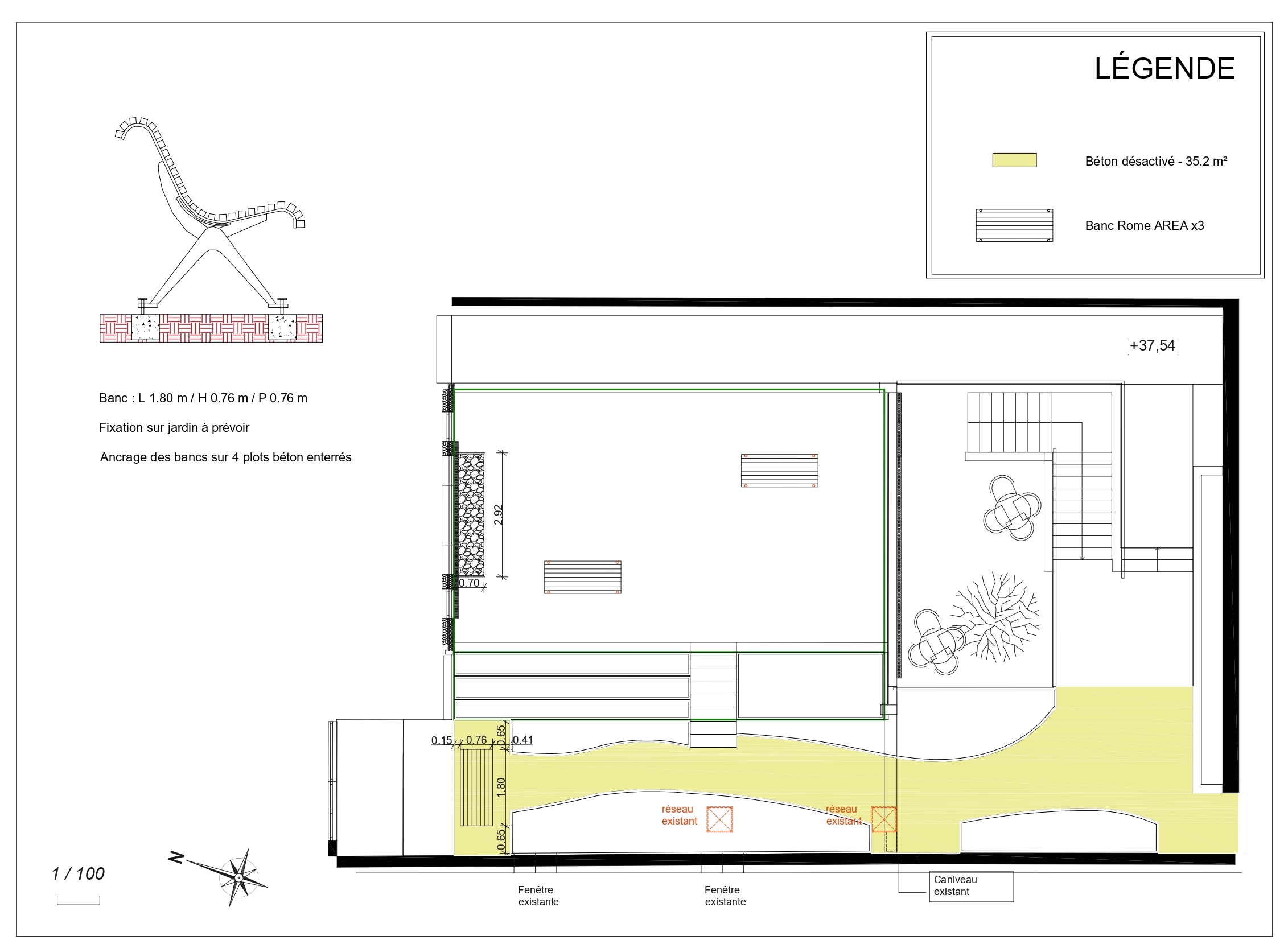
Budget travaux : 120 000 € HT
Surface globale : 800 m2
Mission : Étude et maîtrise d’oeuvre
Avancement : Mission en cours
Maîtrise d’oeuvre : Studio Auréjac Rouzaud (paysage)
Budget travaux : 120 000 € HT
Surface globale : 800 m2
Mission : Étude et maîtrise d’oeuvre
Avancement : Mission en cours
